Beschrijving
OPEN HUIS: Dinsdag 7 oktober van 15.00 tot 18.00 uur. U bent van harte welkom! Afspraak maken is niet nodig.
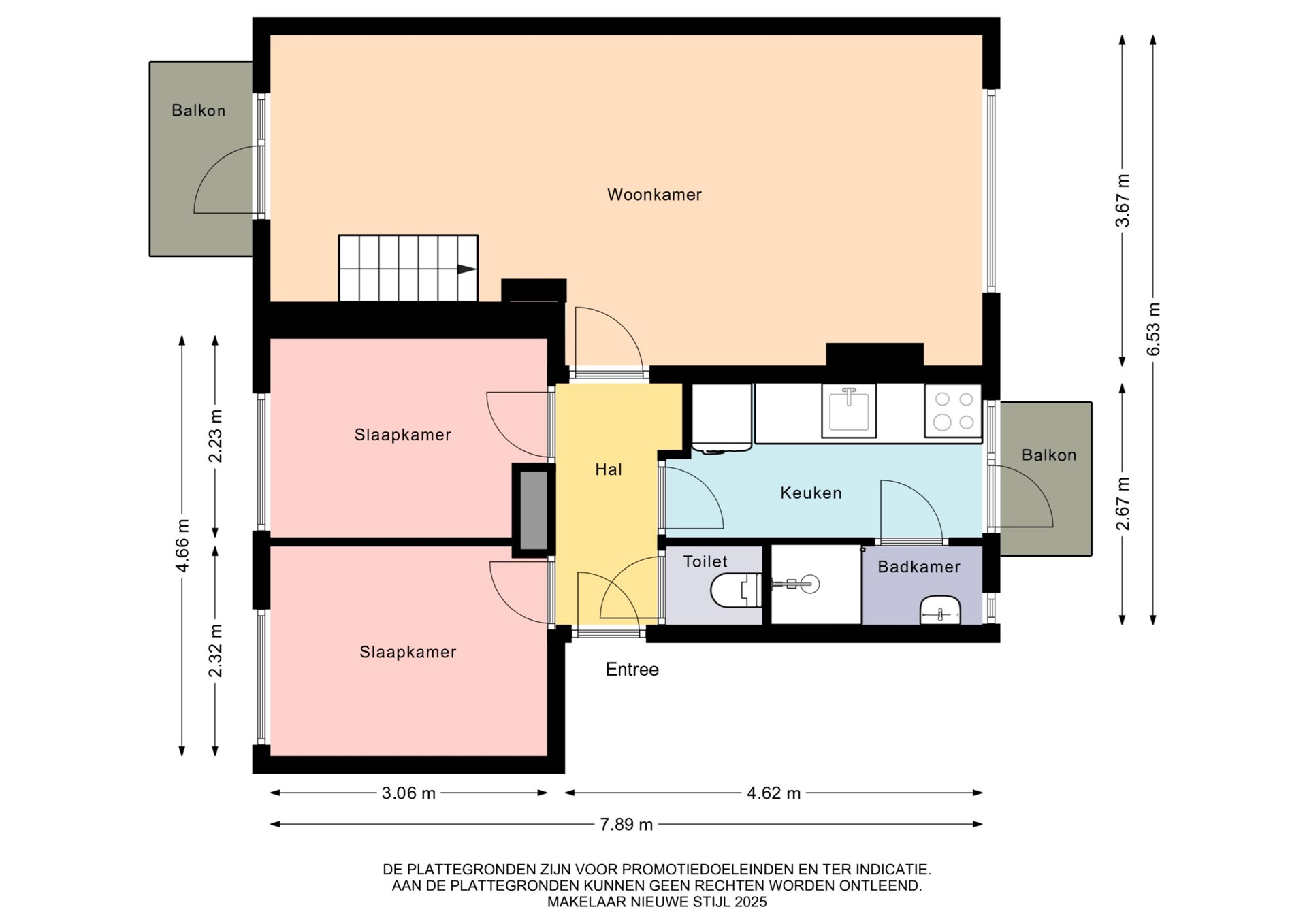
Ruime maisonnette met drie slaapkamers en twee balkons in Amsterdam.
Op zoek naar een ruim en licht appartement in de stad, maar met het gevoel van een echt huis? Deze charmante maisonnette aan de Medemblikstraat 34-1 biedt het beste van twee werelden. Verdeeld over de eerste en tweede verdieping vind je hier een woning met drie slaapkamers, twee balkons én een eigen berging op de begane grond. Een plek waar je het Amsterdamse stadsleven volop ervaart, maar waar je ook kunt genieten van rust en ruimte zodra je de deur achter je dichttrekt.
De woonkamer is het hart van de woning: een sfeervolle, lichte ruimte met voldoende plek voor een eettafel en een gezellige zithoek. Hier woon je zoals je in Amsterdam wilt wonen: samen met vrienden dineren, een boek lezen in het zonnetje of gewoon ontspannen na een drukke werkdag. Aan de voorzijde stap je vanuit de keuken direct het balkon op, waar je het straatleven onder je ziet spelen, een klein stukje stad voor jezelf.
Aan de achterzijde ligt de gesloten keuken, die een fijne scheiding biedt tussen koken en wonen. Vanuit hier heb je toegang tot het tweede balkon, waar het rustig is en je je dag in alle stilte kunt beginnen met een kop koffie of juist kunt afsluiten met een glas wijn. Twee balkons betekent altijd een plek in de zon óf in de schaduw, precies wat je nodig hebt in de zomer.
De woning beschikt over drie slaapkamers. Op de eerste verdieping vind je er twee naast elkaar, praktisch als hoofdslaapkamer en kinderkamer, maar net zo goed te gebruiken als werkkamer of inloopkast. De derde slaapkamer ligt op de tweede verdieping en voelt verrassend ruim en licht. Perfect als master bedroom onder het dak of juist als rustige werkruimte, ver weg van de drukte beneden. De badkamer is voorzien van een douche, wastafel en spiegel; het toilet is apart, wat in een druk huishouden bijzonder praktisch is.
En dan is er nog de eigen berging op de begane grond. Een luxe die elke Amsterdammer meteen weet te waarderen: je fiets staat hier droog en veilig, en je hebt extra ruimte voor spullen die je niet dagelijks nodig hebt. Geen gedoe met fietsenstallingen of krappe bergruimtes, maar gewoon je eigen plek.
Deze maisonnette is een woning waar je direct voelt dat alles klopt. Ruimte om te leven, buitenruimte voor elk moment van de dag, slaapkamers die flexibel zijn in gebruik en dat allemaal in een typische Amsterdamse straat. Hier woon je met de stad om de hoek, maar met de rust en het comfort van een goed ingedeeld huis. Een unieke kans voor iedereen die in Amsterdam een plek zoekt die echt als thuis voelt.
Erfpacht: De erfpracht is afgekocht tot 2061. Service kosten zijn € 158,50 per maand. VvE is actief.
OPEN HUIS: Dinsdag 7 oktober van 15.00 tot 18.00 uur. U bent van harte welkom! Afspraak maken is niet nodig.