Beschrijving

Aan de Cornelis Matersweg 27 in Beverwijk staat een huis waar je meteen verliefd op wordt. Gebouwd in 1928, met de charme van toen en het comfort van nu. Zodra je binnenstapt, voel je de warme sfeer die deze woning zo bijzonder maakt. De authentieke houten balken in het plafond, de houten vloer en de haard zorgen voor een knusse en huiselijke uitstraling. Alles ademt karakter, zonder in te leveren op modern gemak. De woning is ook flink verduurzaamd. Zo is het dak opnieuw geïsoleerd en zijn er acht zonnepanelen geplaatst in 2026. De woning heeft een energielabel C.

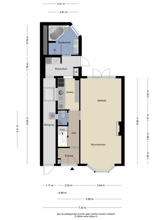
De woonkamer is licht en ruim, met erker aan de voorkant en een prettige indeling waar wonen, eten en ontspannen moeiteloos samenkomen. De keuken ligt in een aparte ruimte, waardoor rust en gezelligheid elkaar niet in de weg zitten. De keuken met inbouwapparatuur is voorzien van alle gemakken, een fijne plek voor wie graag kookt of samen eet. De badkamer is volledig vernieuwd en is voorzien van een ligbad, inloopdouche, dubbele wastafel met spiegel en een modern toilet.

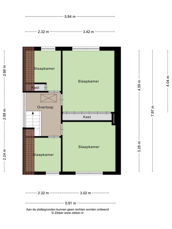
Op de eerste verdieping bevinden zich vier slaapkamers, waarvan twee extra ruim. Elke kamer heeft zijn eigen sfeer en biedt mogelijkheden voor slapen of werken. De bergzolder, bereikbaar via een vlizotrap, biedt praktische extra bergruimte, ideaal voor koffers, kerstspullen of seizoenskleding.

De achtertuin is een plek om van te genieten, van de eerste zonnestralen tot de late avond. Dankzij de ligging op het zonnige zuidwesten is het hier heerlijk vertoeven. Het terras nodigt uit tot lange zomeravonden met familie en vrienden, terwijl het kunstgrasveld perfect is voor spelende kinderen. Helemaal achterin de tuin staat een houten berging met overkapping, handig voor fietsen of tuingereedschap, maar ook een fijne plek om beschut te zitten met een kop koffie of een goed boek.
De locatie is minstens zo aantrekkelijk. 

De Cornelis Matersweg is een rustige, kindvriendelijke straat met scholen, winkels, sportverenigingen en openbaar vervoer in de directe omgeving. Binnen enkele minuten fiets je naar het centrum van Beverwijk, en ook de duinen en het strand liggen dichtbij, ideaal voor wie graag buiten is. U kunt voor de deur parkeren op uw eigen privé parkeerplaats.

Cornelis Matersweg 27 is een huis met een ziel, waar karakter en comfort hand in hand gaan. Alles klopt: de sfeer, de ruimte, de ligging en de afwerking. Een plek waar je binnenstapt en meteen denkt: ja, hier wil ik wonen.

Bijzonderheden:
-	Zonnige tuin op het zuidwesten met overkapping
-	Privé parkeerplaats op eigen terrein
-	Authentieke details, erker met glas in lood, houten balkenplafond en eikenhouten vloer
-	Acht zonnepanelen 2026
-	Vloer bergzolder geïsoleerd 2026
-	Vernieuwde meterkast 2026
-	Dak volledig geïsoleerd, nieuwe pannendak en latten in 2016
-	Moderne badkamer 2016
-	Vier slaapkamers en grote bergzolder.

Kenmerken