Beschrijving
Ruime en lichte eengezinswoning met vijf slaapkamers op een centrale locatie in Beverwijk!
Welkom aan de Hendrik Mandeweg 52 in Beverwijk, een verrassend ruime en goed onderhouden eengezinswoning die alles biedt wat een gezin zich kan wensen. De woning ligt op een centrale en gewilde locatie, met winkels, scholen, sportverenigingen en openbaar vervoer in de directe omgeving. Ook de duinen, het strand en de uitvalswegen richting Haarlem, Alkmaar en Amsterdam zijn binnen enkele minuten bereikbaar, waardoor deze plek zowel praktisch als prettig is om te wonen.
Bij binnenkomst valt meteen de lichte en sfeervolle woonkamer op. Grote raampartijen aan de achterzijde zorgen voor een zee van daglicht en geven een vrij uitzicht op de zonnige achtertuin. De woonkamer is ruim genoeg voor een comfortabele zithoek en een grote eettafel waar het hele gezin samen kan komen. Dankzij de open indeling ontstaat er een fijne verbinding tussen wonen, koken en eten. Ideaal voor gezinnen die houden van gezelligheid en ruimte. De open keuken aan de voorzijde van het huis is modern uitgevoerd en voorzien van diverse inbouwapparaten, waaronder een kookplaat, oven, afzuigkap en vaatwasser. Terwijl je aan het koken bent, kijk je uit over de straat en houd je contact met de rest van het gezin in de woonkamer.
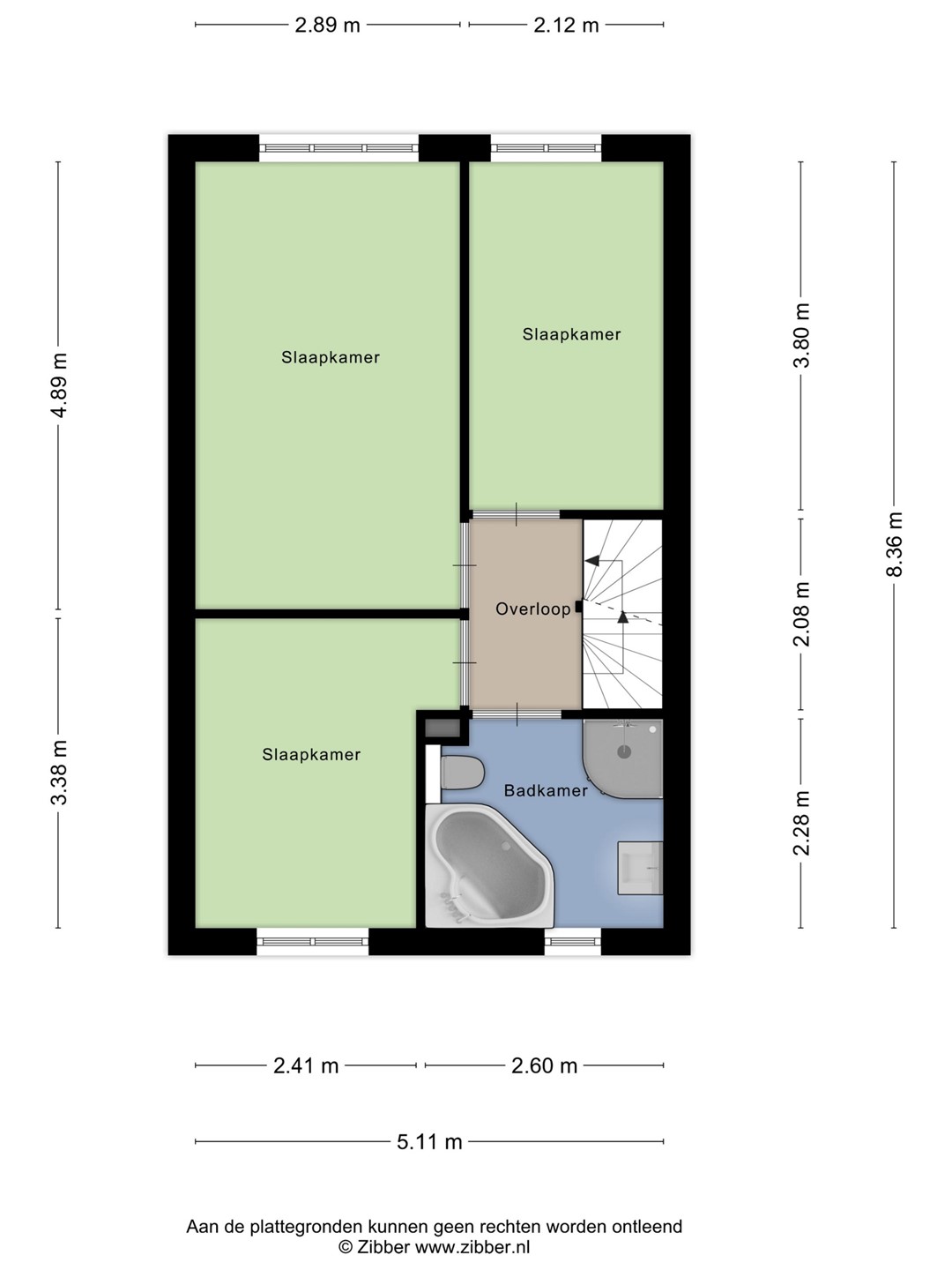
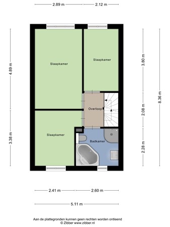
Op de eerste verdieping bevinden zich drie goed bemeten slaapkamers die allemaal profiteren van veel natuurlijke lichtinval. De badkamer is volledig uitgerust met een ligbad met jets, douche, toilet en een wastafel met spiegel. Een comfortabele ruimte waar het hele gezin goed uit de voeten kan. De tweede verdieping biedt nog eens twee ruime slaapkamers met dakramen, die zorgen voor een lichte en prettige sfeer. Deze verdieping leent zich uitstekend voor verschillende doeleinden: extra slaapkamers voor een groot gezin, een werk- of studeerkamer, of juist een rustige hobbyruimte. Dankzij de slimme indeling en het gebruik van de beschikbare ruimte voelt de woning overal licht en luchtig aan.
De achtertuin is een heerlijke plek om te ontspannen na een drukke dag. De tuin is grotendeels bestraat en onderhoudsvriendelijk aangelegd, met ruimte voor een gezellige loungehoek, een eettafel of speelplek voor kinderen. Hier kun je volop genieten van de zon, rust en privacy. Aan de voor- en achterkant is een buitenkraan. De ligging van de woning is ideaal. Er is voldoende parkeergelegenheid en op korte afstand van alle dagelijkse voorzieningen. Binnen enkele minuten bereik je supermarkten, scholen en sportvelden, terwijl het centrum van Beverwijk met zijn winkels, gezellige horeca en de bekende Bazaar ook dichtbij ligt. Dankzij de uitstekende verbinding met het openbaar vervoer en de nabijgelegen snelwegen A9 en N208 zijn omliggende steden eenvoudig en snel bereikbaar. Parkeervergunning in de straat kost circa € 28,- per jaar.
De woning aan de Hendrik Mandeweg 52 is een echte familiewoning: ruim, licht en comfortabel, met maar liefst vijf slaapkamers en een fijne tuin. Hier kun je jarenlang met plezier wonen, met ruimte voor iedereen en alles wat het gezinsleven zo mooi maakt. Of je nu op zoek bent naar een huis om in te groeien, te werken of te genieten van rust en gezelligheid. Deze woning heeft het allemaal.
Wie op zoek is naar een ruime, verzorgde woning op een centrale locatie in Beverwijk zal zich hier direct thuis voelen.