Beschrijving

Deze woning is beschikbaar!

In een rustige, kindvriendelijke wijk in het hart van Beverwijk staat deze goed onderhouden twee-onder-één-kapwoning die alles biedt wat je je maar kunt wensen: ruimte, comfort, sfeer en een perfecte ligging. De woning ademt gezelligheid en warmte, en is met zorg bewoond en onderhouden, hier voel je je direct thuis.

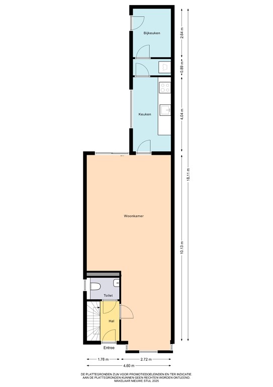
Bij binnenkomst valt meteen de lichte en sfeervolle woonkamer op, een prettige ruimte waar je heerlijk kunt ontspannen of gezellig kunt samenzijn met familie en vrienden. De grote schuifpui achter zorgt voor veel daglicht en geven de woonkamer een open en uitnodigend karakter. Aansluitend bevindt zich de ruime keuken, waar koken een plezier is. De keuken met inbouwapparatuur biedt volop werk- en bergruimte en heeft een praktische indeling, waardoor hij zowel functioneel als gezellig is. Of je nu een uitgebreid diner bereidt of snel iets opwarmt: dit is een plek waar je graag bent. In de bijkeuken is plek voor de wasmachine, droger en veel bergruimte. 

Op de eerste verdieping vind je twee comfortabele slaapkamers, stuk voor stuk ruim en licht. Ze zijn ideaal als hoofdslaapkamer, kinderkamer of werkkamer, afhankelijk van je woonwensen. De badkamer is royaal van opzet en is voorzien van zowel een ligbad als een aparte douche, wat zorgt voor optimaal comfort. Een plek om de dag ontspannen te beginnen of juist in alle rust af te sluiten. Op de zolder is een extra, derde slaapkamer gerealiseerd. De slaapkamer is bereikbaar via een vaste trap.

De achtertuin is verzorgd en zonnig, een fijne buitenruimte waar je in alle privacy kunt genieten van de zon, een goed boek of een gezellige barbecue met vrienden. De tuin is ruim genoeg voor kinderen om in te spelen, maar ook overzichtelijk genoeg om onderhoudsvriendelijk te zijn. De tuin is voorzien van achterom.

Wat deze woning extra aantrekkelijk maakt, is de ligging. Je woont hier op loopafstand van het gezellige centrum van Beverwijk, met een breed aanbod aan winkels, restaurants en het treinstation binnen handbereik. Ook het park en sportverenigingen zoals voetbal, hockey en tennis bevinden zich in de directe omgeving, evenals scholen en speelplekken. De buurt is rustig en gemoedelijk, wat het een ideale plek maakt voor gezinnen of stellen die graag centraal maar toch rustig willen wonen.

Kortom: een heerlijk huis op een uitstekende locatie, waar je direct in kunt trekken en kunt genieten van alles wat het leven in Beverwijk zo prettig maakt. Maak snel een afspraak voor een bezichtiging en ontdek zelf de charme en het comfort van deze fijne woning.

Kenmerken