Beschrijving

Ruim en licht appartement met drie slaapkamers en dakterras, midden in het bruisende centrum.

Wonen in het hart van Heemskerk betekent genieten van levendigheid en gemak, alles wat je nodig hebt ligt letterlijk om de hoek. Aan de Jan van Scorelstraat 4 vind je dit lichte en ruime appartement dat zich uitstrekt over twee verdiepingen, met een heerlijk dakterras als extra pluspunt.
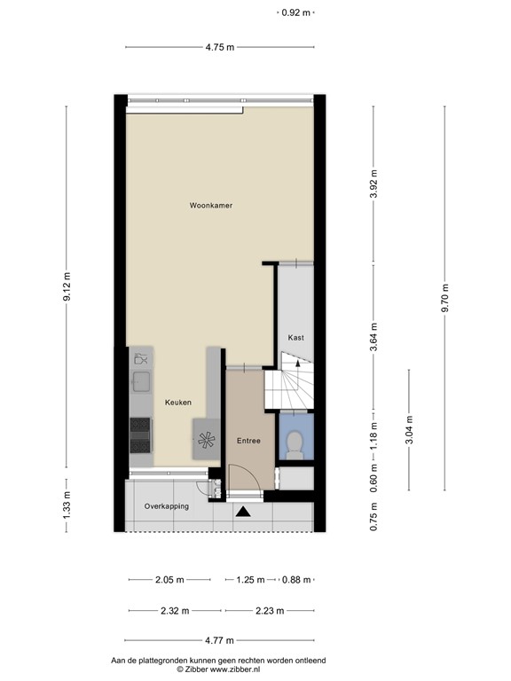
De ruime woonkamer valt direct op door de grote raampartijen die zorgen voor veel natuurlijk licht en een prettige, open sfeer. De half open keuken sluit hier naadloos op aan en biedt volop ruimte om samen te koken, te borrelen of te eten met familie en vrienden. Het appartement is een kluswoning. Momenteel moet de cv-installatie nog worden geïnstalleerd en is de badkamer niet aangesloten op het water. 

Op de tweede verdieping bevinden zich drie goed ingedeelde slaapkamers, elk met een eigen karakter. Of je nu een fijne werkplek, logeerkamer of kinderkamer wilt creëren, het kan allemaal. De badkamer heeft een wastafel met spiegel en douche. Buiten geniet je van het dakterras, een heerlijke plek om te ontspannen, te ontbijten in de zon of de dag af te sluiten met een goed glas wijn.

De ligging is absoluut ideaal: midden in het gezellige dorpscentrum van Heemskerk, met supermarkten, winkels, restaurants en cafés op loopafstand. Ook de bereikbaarheid is uitstekend, binnen korte tijd rijd je naar Alkmaar, Haarlem of Amsterdam, en de duinen en het strand zijn dichtbij voor wie houdt van rust en natuur.

Kortom:
Een comfortabel en licht appartement met drie slaapkamers, een dakterras en een toplocatie in het hart van Heemskerk. Perfect voor wie het gemak van centrum wonen wil combineren met ruimte en privacy.

Kenmerken