Beschrijving

Luxe en energiezuinig appartement op toplocatie met groot balkon en privé parkeerplaats.

Op misschien wel de mooiste plek in het centrum van Heemskerk, op loopafstand van winkels, gezellige restaurants en supermarkten, ligt dit prachtige en uiterst comfortabele hoekappartement met energielabel A+. Hier woon je ruim, licht en duurzaam, met een schitterend uitzicht op water en groen, een zeldzame combinatie van rust en levendigheid.

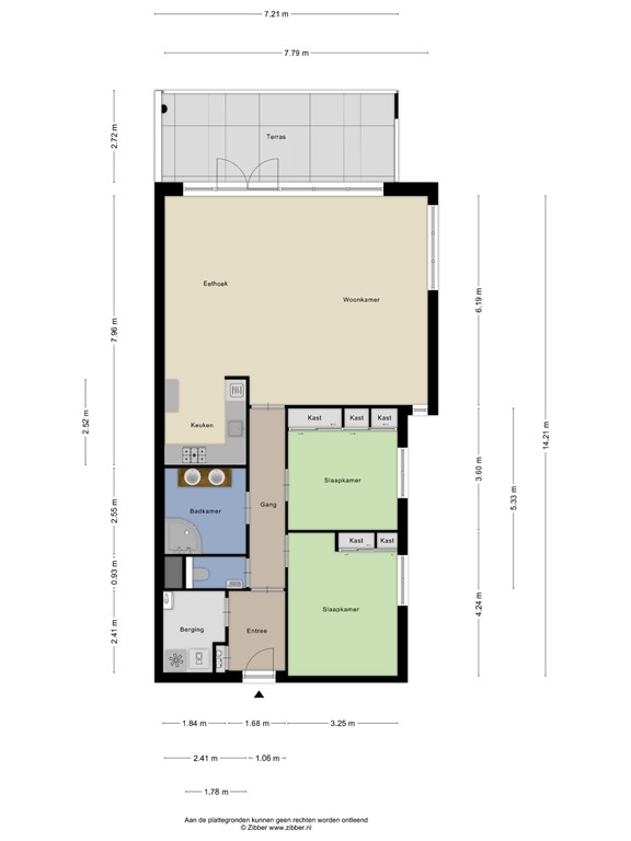
Het appartement bevindt zich op de eerste verdieping van een kleinschalig en verzorgd complex, dat uiteraard is voorzien van een lift. Met een woonoppervlakte van 104 m² biedt het alle ruimte voor comfortabel en eigentijds wonen. Zodra je binnenstapt, valt het gevoel van ruimte en licht direct op. De woonkamer is royaal opgezet, voorzien van een mooie houten vloer en grote raampartijen die zorgen voor een aangename sfeer en een prachtig uitzicht over het water en het omliggende groen.

De halfopen keuken sluit naadloos aan op de woonkamer. De praktische en uitnodigende indeling, gecombineerd met de ingebouwde apparatuur, maakt dit de ideale plek voor wie graag gasten ontvangt en geniet van gezelligheid.

Het appartement beschikt over twee ruime slaapkamers, elk met voldoende lichtinval en rust. De badkamer is verzorgd en uitgerust met een douche en een wastafel met spiegel. Het toilet bevindt zich in een aparte ruimte, wat extra comfort biedt. Daarnaast is er een handige CV-/installatieruimte met extra bergruimte binnen het appartement.

Een bijzonder pluspunt is het royale balkon, een heerlijke plek waar je ongestoord geniet van het prachtige uitzicht over het water en het groene decor. Omdat het appartement niet te hoog gelegen is, behoud je een fijn contact met de levendigheid van de straat, zonder dat dit ten koste gaat van je privacy.

In de kelder bevindt zich een privéberging, ideaal voor fietsen of extra opslag. Daarnaast beschikt het appartement over een eigen parkeerplaats op het buitenterrein.

De locatie is werkelijk uniek: alles wat het dagelijkse leven prettig maakt ligt binnen handbereik. Of je nu even snel boodschappen wilt doen, gezellig uit eten wilt gaan of gewoon wilt genieten van de levendige dorpssfeer, hier kan het allemaal. Tegelijkertijd biedt het uitzicht op het water en de groene omgeving een gevoel van rust en ruimte dat zeldzaam is in een centrumlocatie. Ook Amsterdam, Haarlem en Alkmaar zijn eenvoudig binnen 30 minuten te bereiken met de auto.

Kortom: dit is een stijlvol, duurzaam en comfortabel appartement met een unieke ligging. Een woning die rust en gemak moeiteloos combineert, klaar voor nieuwe bewoners die op zoek zijn naar kwaliteit, ruimte en het beste van Heemskerk.

Kenmerken