Beschrijving
Verkoop bij inschrijving: U kunt een bod doen tot 1 mei 12.00 uur.
Aan de geliefde Beatrixlaan in Beverwijk ligt dit prachtige, moderne en energiezuinige appartement, een woning die direct opvalt door de fijne ligging, de royale opzet en het vrije uitzicht op het groen. Gelegen op de derde verdieping van een verzorgd appartementencomplex en comfortabel bereikbaar per lift, biedt dit appartement alles wat u zoekt: ruimte, licht, comfort en een uitstekende locatie. Per verdieping zijn slechts twee appartementen. Vanaf het eerste moment ervaart u hier een aangename sfeer. De woning is keurig onderhouden, goed ingedeeld en biedt een heerlijk gevoel van rust en privacy, terwijl alle dagelijkse voorzieningen zich op korte afstand bevinden. Een plek waar u thuiskomt en direct kunt genieten.
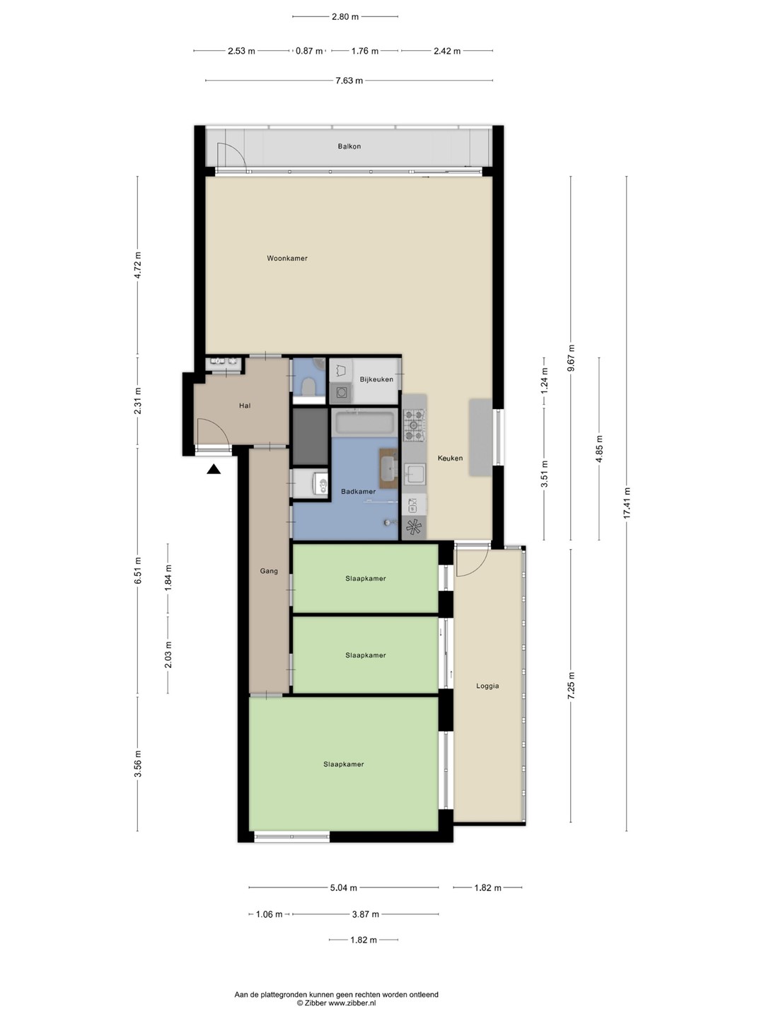
De woonkamer aan de voorzijde is zonder twijfel één van de absolute blikvangers van het appartement. Dankzij de prachtige glazen wand stroomt het daglicht rijkelijk naar binnen en geniet u van een weids en vrij uitzicht op het groen. Dit geeft de ruimte niet alleen een bijzonder lichte uitstraling, maar ook een open en ruimtelijk karakter dat direct aanspreekt. De ramen aan de voorkant zijn voorzien van screens. Hier is volop plaats voor een comfortabele zithoek en een gezellige eethoek, waardoor het een heerlijke leefruimte is voor zowel ontspannen avonden thuis als het ontvangen van familie en vrienden. De open keuken sluit hier perfect op aan en maakt van het woongedeelte een sfeervol geheel. De keuken is uitgevoerd met luxe inbouwapparatuur en biedt alle comfort voor wie van koken en gezellig samenzijn houdt. Praktisch, stijlvol en volledig passend bij het moderne karakter van de woning.
Ook de buitenruimtes zijn een groot pluspunt van dit appartement. Aan de voorzijde bevindt zich een fijn balkon waar u in alle rust kunt genieten van de omgeving en het uitzicht. Aan de achterzijde is daarnaast een groot overdekt balkon aanwezig met balkonbeglazing wat geheel geopend en gesloten kan worden, een heerlijke extra plek waar u beschut buiten kunt zitten en waar u al vroeg in het seizoen en tot laat in het jaar comfortabel kunt verblijven. Deze combinatie van twee balkons maakt dat u op elk moment van de dag een prettige plek buiten vindt.
Via de hal bereikt u de drie slaapkamers, die stuk voor stuk goed van formaat zijn en daardoor op verschillende manieren gebruikt kunnen worden. Uiteraard zijn ze uitstekend geschikt als slaapkamer, maar ook als werkruimte, hobbykamer of logeerkamer bieden zij volop mogelijkheden. Juist deze extra kamers geven het appartement veel flexibiliteit en maken het aantrekkelijk voor uiteenlopende woonwensen. De slaapkamer aan de achterkant is voorzien van rolluiken. De badkamer is compleet uitgevoerd met een wastafel met spiegel, een inloopdouche en een ligbad, zodat u hier beschikt over alle comfort voor zowel een snelle ochtendroutine als een ontspannen moment aan het einde van de dag. Het toilet bevindt zich in een separate ruimte, wat extra praktisch is en bijdraagt aan het wooncomfort.
Ook aan gemak en praktische voorzieningen ontbreekt het hier niet. Er is bijvoorbeeld een gemeenschappelijke fietsenstalling. In de parkeerkelder beschikt u over een eigen privé parkeerplaats, een groot pluspunt dat zorgt voor comfort en gemak in het dagelijks leven. Daarnaast is er een eigen berging aanwezig, ideaal voor het opbergen van fietsen, koffers, gereedschap of andere spullen die u graag binnen handbereik maar netjes uit het zicht wilt bewaren. Het energiezuinige karakter van het appartement draagt bovendien bij aan aangenaam en comfortabel wonen.
De ligging maakt het geheel extra aantrekkelijk. U woont hier op een fijne locatie in Beverwijk, met winkels, supermarkten, restaurants en sportverenigingen op korte fietsafstand. Alles wat u nodig heeft voor het dagelijks leven ligt binnen handbereik. Daarnaast is ook de bereikbaarheid uitstekend. Met de auto bent u binnen 7 minuten op het strand van Wijk aan Zee en binnen circa 30 minuten in Alkmaar, Haarlem en Amsterdam, waardoor deze woning ook voor forenzen bijzonder interessant is. Zo combineert u het rustige wonen op een groene locatie met de voordelen van een centrale ligging.
Beatrixlaan 72 is een appartement dat op alle fronten weet te overtuigen: modern, licht, ruim en comfortabel, met een prachtige woonkamer, luxe open keuken, drie slaapkamers, twee balkons, een complete badkamer, een eigen parkeerplaats en berging én een schitterend vrij uitzicht op het groen. Een heerlijk appartement op een toplocatie, waar u iedere dag opnieuw met plezier zult wonen.