Beschrijving
Welkom bij de Cornelis Matersweg 12 in Beverwijk. In één van de meest geliefde straten van de stad staat deze charmante twee-onder-één-kapwoning, die direct opvalt door haar karakter en warme uitstraling. De rustige en groene omgeving maakt dit een heerlijke plek om te wonen. Het is een buurt waar kinderen veilig kunnen opgroeien, maar ook volwassenen vinden hier een prettige balans tussen rust en bereikbaarheid. Winkels, scholen, sportvoorzieningen, duinen en het strand van Wijk aan Zee en Heemskerk liggen op fietsafstand, waardoor u nooit ver hoeft te reizen. De woning ligt op korte afstand van de A9 waardoor u binnen 20 minuten in Alkmaar, Haarlem en Amsterdam kunt zijn.
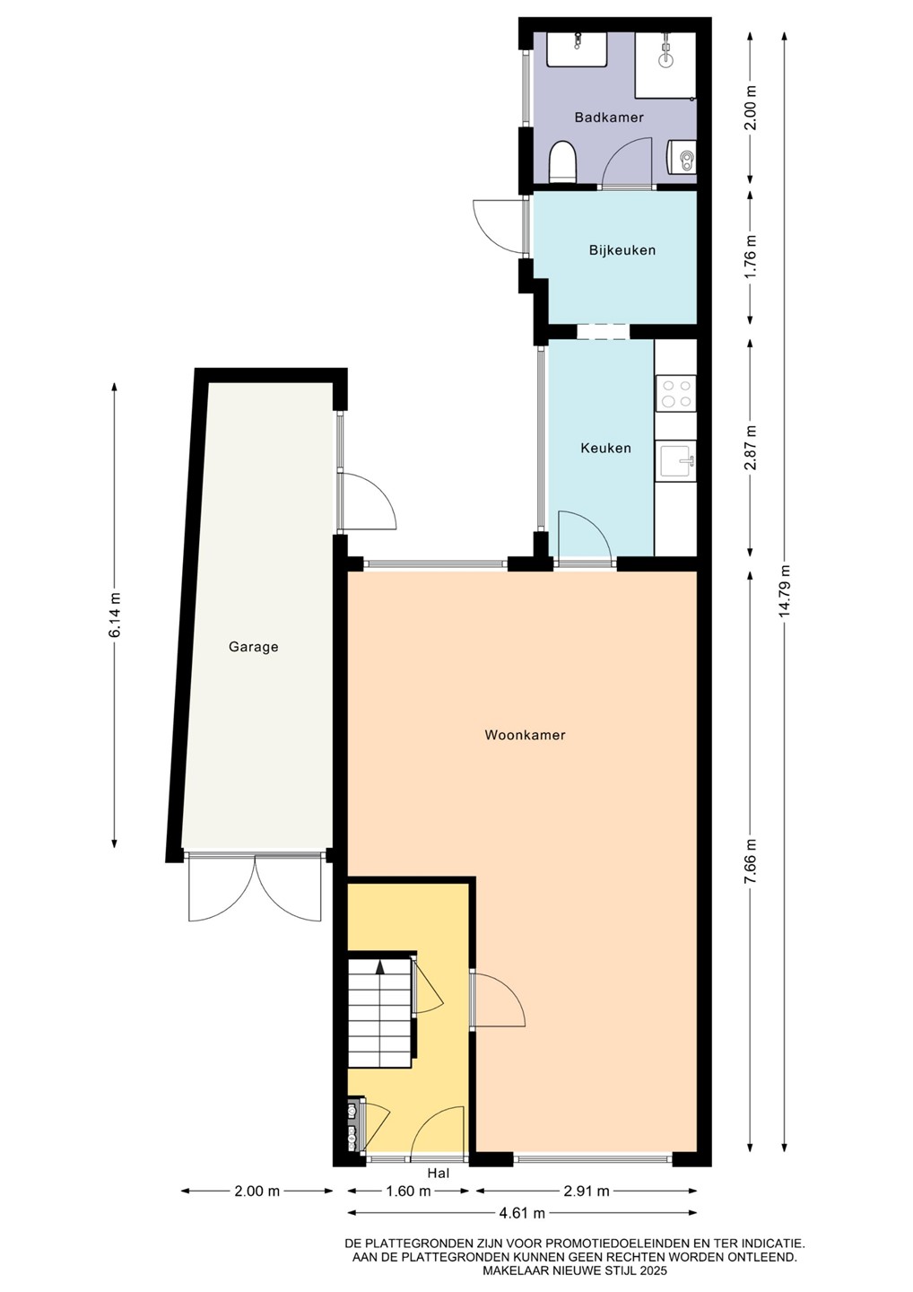
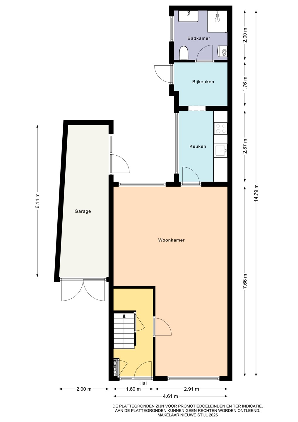
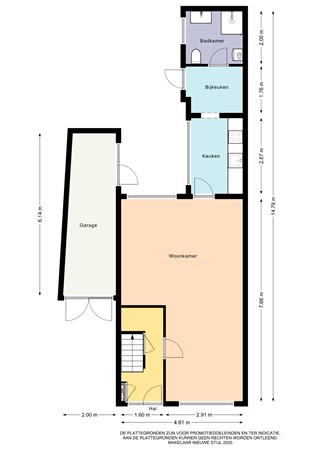
Zodra u binnenstapt, ervaart u de gemoedelijke sfeer van dit huis. De woonkamer vormt het hart van de woning en is een plek waar licht en gezelligheid samenkomen. Hier geniet u van knusse avonden of lange gesprekken aan de eettafel. De keuken is gesitueerd in een aparte ruimte en uitgerust met moderne apparatuur, waardoor koken niet alleen praktisch, maar ook een plezierige bezigheid wordt. De woonkamer, keuken en hal zijn voorzien van vloerverwarming.
Een groot pluspunt van deze woning is dat er op de begane grond een extra badkamer aanwezig is. De badkamer is voorzien van toilet, wastafel met spiegel en douche. Op de eerste verdieping vindt u twee slaapkamers. De grote slaapkamer aan de achterkant is voorzien van dakkapel, vaste kast, douche en wastafel met spiegel. De slaapkamer aan de voorkant is eveneens voorzien van een dakkapel en wordt momenteel gebruikt als muziekkamer. Ook is er op deze verdieping een extra toiletruimte aanwezig met dakraam en wasmachine aansluiting.
Via een vaste wenteltrap bereikt u de zolder die verrassend veel ruimte biedt. Deze ruimte is voorzien van twee grote dakramen en momenteel in gebruik als bergruimte, maar biedt volop mogelijkheden. Denk hierbij aan een werkplek, een hobbyruimte of als derde slaapkamer.
Cornelis Matersweg 12 is meer dan alleen een huis: het is een plek waar sfeer, comfort en praktische indeling samenkomen. De combinatie van de geliefde ligging, de karaktervolle uitstraling en de vele mogelijkheden maakt deze woning bijzonder aantrekkelijk. Wie op zoek is naar een thuis met ruimte om te groeien en te genieten, zal zich hier direct welkom voelen.
De achtertuin is een oase van rust en ruimte. Hier kunt u de hele dag van de zon genieten en tot rust komen. Via de voorkant en achtertuin heeft u toegang tot de garage met bergruimte. Parkeren doet u eenvoudig voor de deur op uw eigen oprit of in de garage. Bent u opzoek naar een uniek huis in Beverwijk met een grote zonnige tuin en garage? Maak dan snel een afspraak voor een bezichtiging.