Beschrijving
Verkoop bij inschrijving: U kunt een bod doen tot 30 april 12.00 uur.
In een kindvriendelijke woonwijk, centraal gelegen in Beverwijk, staat deze tussenwoning met vier slaapkamers, een verrassend diepe achtertuin op het zuidwesten en volop mogelijkheden om de woning geheel naar eigen wens te moderniseren. Een ideale kans voor kopers die op zoek zijn naar ruimte, een fijne ligging en een huis met veel potentie.
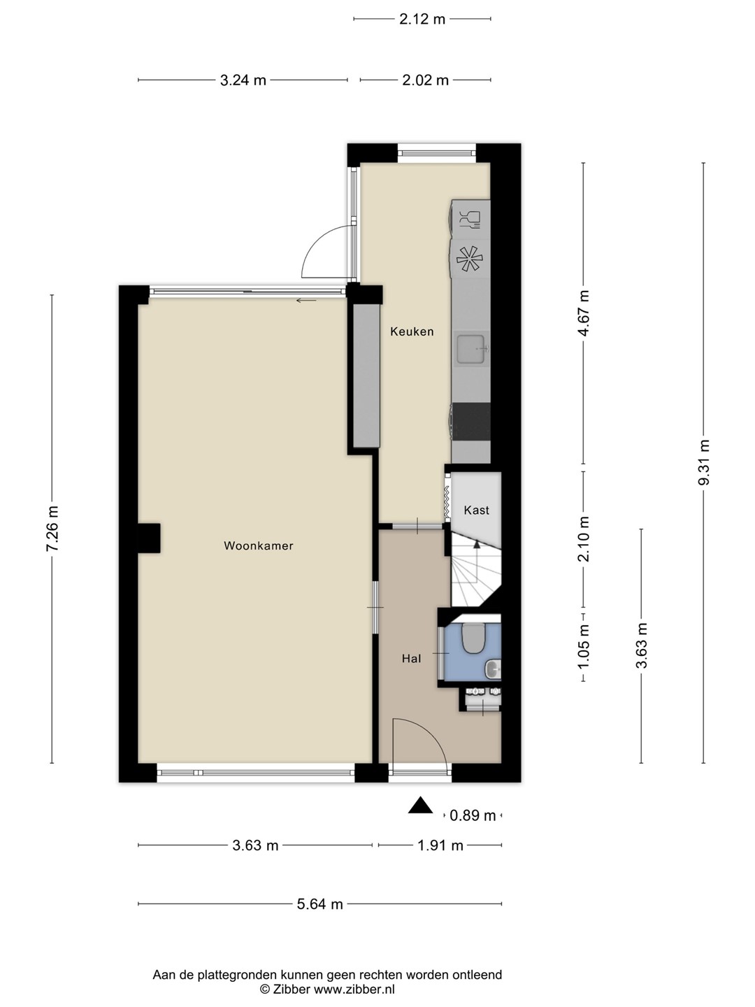
Bij binnenkomst ervaart u direct de praktische indeling van de woning. De woonkamer is heerlijk licht en staat door de glazen schuifpui aan de achterzijde in prettige verbinding met de tuin. Hierdoor wordt binnen moeiteloos met buiten verbonden en geniet u van veel daglicht. De keuken is ondergebracht in een separate ruimte en is voorzien van een kookplaat, afzuigkap, koel-/vriescombinatie en vaatwasser.
Op de eerste verdieping bevinden zich drie slaapkamers en de badkamer. De badkamer is uitgerust met een douche, wastafel met spiegel en een toilet. Op de tweede verdieping is een vierde slaapkamer gerealiseerd. Daarnaast bestaat de mogelijkheid om de woning verder uit te breiden met een dakopbouw, waardoor extra woonoppervlakte kan worden gecreëerd.
Een van de absolute pluspunten van deze woning is de achtertuin. Deze is verrassend groot en gunstig gelegen op het zuidwesten, waardoor u hier volop kunt genieten van de middag- en avondzon. De tuin is ingericht met een terras en een grasveld en beschikt aan de achterzijde over twee bergingen, ideaal voor het opbergen van spullen en het stallen van fietsen. De achtertuin is voorzien van grondwaterpomp.
De woning dient gemoderniseerd te worden, maar biedt juist daardoor een uitstekende basis om er een eigentijds en comfortabel thuis van te maken. Dankzij de centrale ligging in Beverwijk, de kindvriendelijke omgeving, de vier slaapkamers en de uitbreidingsmogelijkheden is dit een woning met bijzonder veel toekomstperspectief.