Beschrijving
Welkom bij Vuursteen 6 in Beverwijk, een moderne, uitstekend afgewerkte gezinswoning in de populaire en kindvriendelijke nieuwbouwwijk Broekpolder. Dit is zo’n huis waar u binnenstapt en direct voelt dat alles klopt: licht, ruimte, comfort en een afwerking die uitnodigt om hier meteen te willen wonen. Met maar liefst vijf slaapkamers, twee badkamers en energielabel A++ biedt deze woning alles wat een gezin zich kan wensen én meer.
De entree is ruim en verzorgd, waarna u wordt meegenomen naar de verrassend lichte woonkamer. Dankzij de grote ramen aan de achterzijde geniet u van een prachtige lichtinval en een vrij zicht op de fraai aangelegde achtertuin. De woonkamer ademt een sfeervolle, warme ambiance en vormt een ideale plek voor zowel ontspanning als gezelligheid. Hier komt u na een drukke dag écht thuis. De moderne open keuken is een echte eyecatcher: luxe uitgevoerd met hoogwaardige materialen, volop werkruimte en een eigentijdse uitstraling. Een perfecte ruimte voor kookliefhebbers, maar ook een heerlijke plek om samen te komen tijdens het koken. De keuken is voorzien van Bora kookplaat met plasma filter, Quooker, combi oven met magnetron functie, professionele koffiemachine, vaatwasser, koelkast en vriezer.
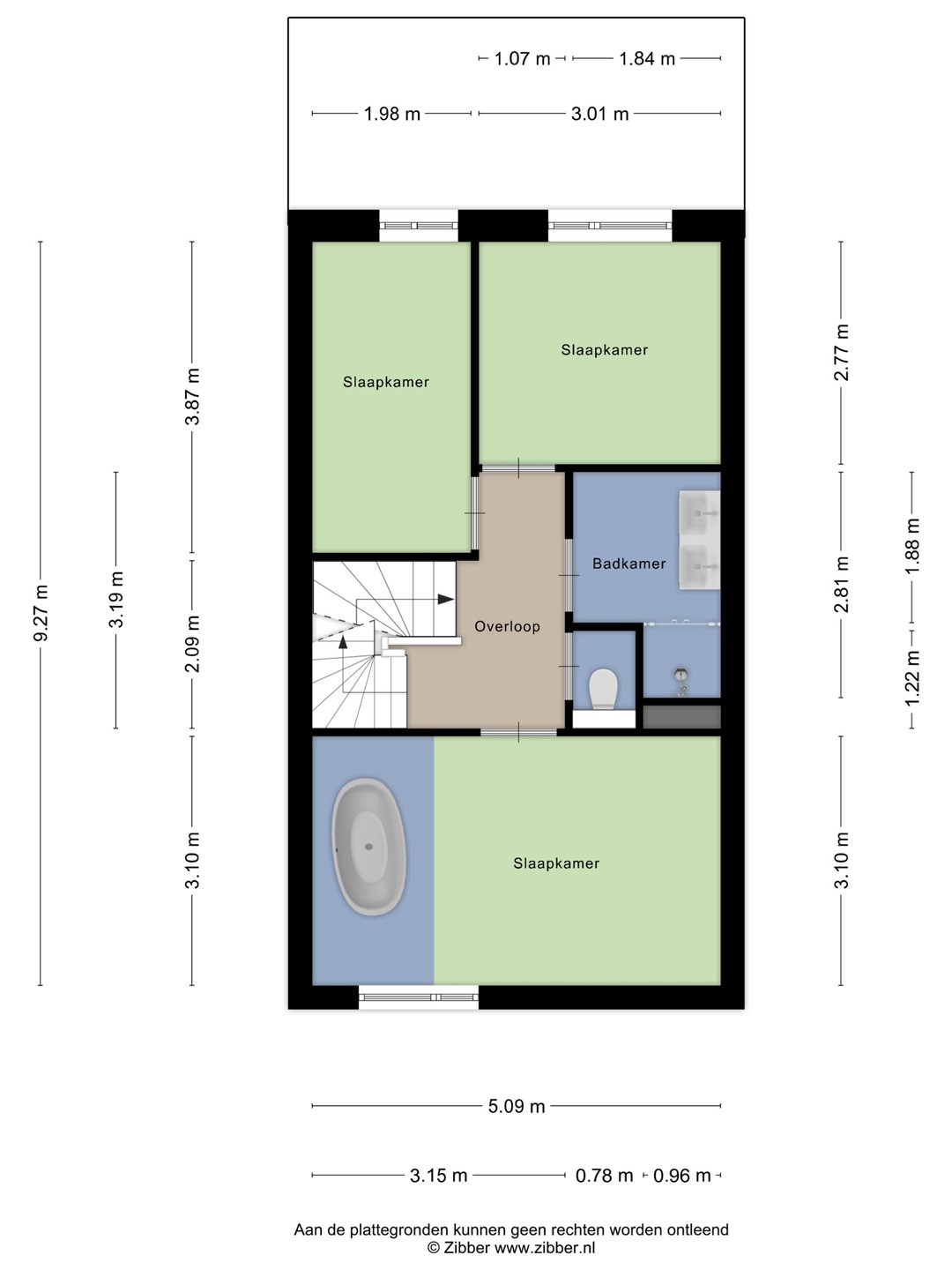
Op de eerste verdieping bevinden zich drie goed bemeten slaapkamers, die allemaal een fijne lichtinval en rustige uitstraling hebben. De hoofdslaapkamer is een heerlijk privéverblijf dankzij de eigen ensuite badkamer met bad, een luxe die niet elke woning biedt. Daarnaast vindt u op deze verdieping een tweede, complete badkamer die zeer praktisch is voor gezinsleden of gasten. Deze badkamer heeft een dubbele wastafel met spiegel en inloopdouche. Toilet is via een separate ruimte bereikbaar. Op de tweede verdieping loopt u via de ruime voorzolder naar twee slaapkamers, ideaal te gebruiken als kinder-, werk- of logeerkamer. Dankzij de rechte wanden en de nette afwerking zijn het volwaardige ruimtes met talloze gebruiksmogelijkheden. In totaal heeft de woning vijf slaapkamers.
De woning beschikt over energielabel A++, wat betekent dat het huis perfect geïsoleerd is en voorzien van energiezuinige voorzieningen. Dit zorgt niet alleen voor een comfortabel binnenklimaat, maar ook voor aanzienlijk lagere energielasten. Duurzaam, toekomstgericht en helemaal klaar voor vele zorgeloze woonjaren. De woning heeft 12 zonnepanelen op het dak liggen.
De ligging in Broekpolder is bovendien ideaal: een moderne nieuwbouwwijk die bekendstaat om haar kindvriendelijke karakter, veilige straten en prettige leefomgeving. U woont hier vlak bij scholen, speeltuinen, sportvoorzieningen, treinstation en winkelcentra, terwijl u ook snel de uitvalswegen bereikt richting Haarlem, Alkmaar of Amsterdam. Eventueel is het mogelijk een eigen parkeerplaats te realiseren in de voortuin.