Beschrijving
Deze woning is beschikbaar
Luxe wonen aan het water in Heiloo. Op een prachtige locatie in Heiloo bevindt zich deze sfeervolle twee-onder-een-kapwoning met garage en eigen oprit. Een woning waar comfort, licht en een uitzonderlijke ligging aan het water op harmonieuze wijze samenkomen. Niet alleen de indeling is prettig, vooral de woonbeleving maakt dit huis bijzonder.
Bij binnenkomst ervaart u direct de aangename en rustige sfeer. De woonkamer aan de voorzijde vormt een comfortabele leefruimte waar u heerlijk kunt ontspannen. Aan de achterzijde ligt het hart van de woning: de open keuken met een volledig glazen achtergevel. Deze zorgt voor een prachtige lichtinval en een vrij uitzicht op de fraai aangelegde achtertuin en het water, waardoor binnen en buiten op natuurlijke wijze in elkaar overlopen. De inpandige garage met bijkeuken is toegankelijk via de keuken. De garage heeft een vliering waar u veel bergruimte heeft.
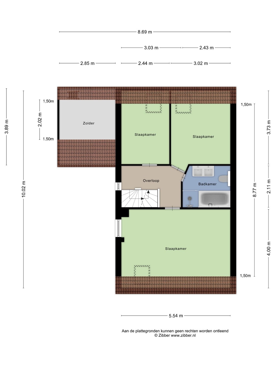
Op de eerste verdieping bevinden zich drie goed bemeten slaapkamers en een complete badkamer, voorzien van een ligbad, douche, wastafel met spiegel en een toilet. De tweede verdieping beschikt over een royale vierde slaapkamer, die zich uitstekend leent als master bedroom, werkruimte of logeerkamer.
De achtertuin vormt zonder twijfel een van de hoogtepunten van deze woning. Deze is fraai aangelegd met diverse beplanting, meerdere zitplekken en een terras direct aan het water. Dankzij de eigen steiger geniet u hier in alle rust en privacy van het buitenleven, de natuur en het water, een unieke plek om te ontspannen of lange zomerdagen door te brengen.
Deze woning combineert een fijne gezinsindeling met een zeldzaam mooie ligging en is gelegen in het geliefde Heiloo, met scholen, winkels, sportvoorzieningen en natuurgebieden binnen handbereik.
Een huis dat u niet alleen ziet, maar vooral voelt. Hier woont u elke dag met ruimte, licht en een prachtig uitzicht.